10801728_829785270428802_4611163117090709735_n.jpg

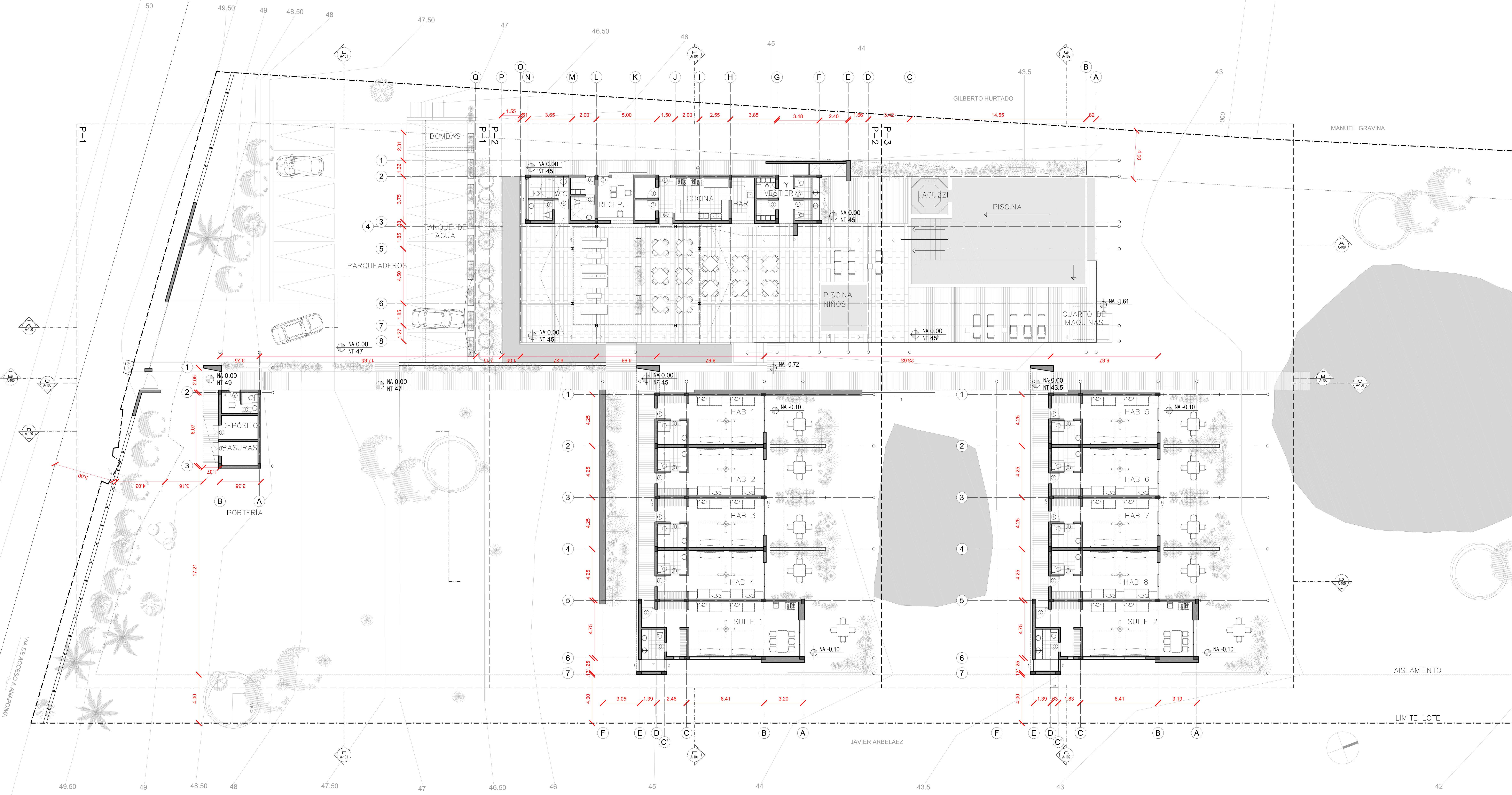
Client: La Masía Hotel Boutique

Design: Alejandro Puentes, Esteban Castro | Collaborators: Melissa Hernández | Construction: Jean Paul Vergnaud | Structural engineer: Manuel Duarte | Soil egnineer: Alfonso Uribe

1939587_645466792193985_932173643_o.jpg\.psfHomeDocuments0-EN CURSO2-Hotel Anapoima1-Proyectoa765a2_300b7e74c967488d91052fc986c66f19.jpg_srz_1425_1064_85_22_0.50_1.20_0

Masia1

a765a2_1ccd418528f2cb365cd9a47dc40de322.jpg_srz_1425_950_85_22_0.50_1.20_0